定制家具开料图纸怎么看,从设计到实物的工艺概述
你有没有想过,家里的家具是不是也能像衣服一样,量身定制呢?没错,现在定制家具已经成为了一种时尚潮流。但是,当你拿到一份定制家具的开料图纸时,是不是觉得一头雾水,不知道从何看起呢?别急,今天就来给你详细解析怎么读懂这份神秘的开料图纸。
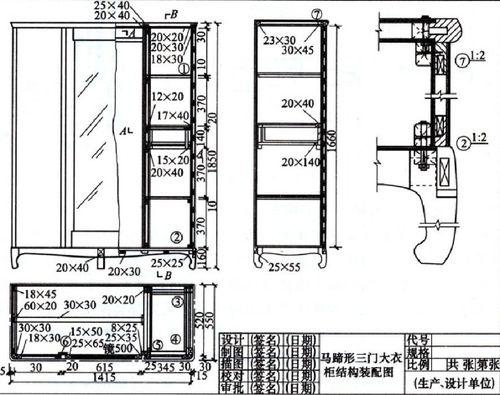
一、认识开料图纸

首先,你得知道,开料图纸是家具制作过程中的重要文件,它详细记录了家具各个部件的尺寸、形状和位置。这份图纸通常由设计师或家具厂提供,是家具定制的灵魂所在。
二、图纸的基本组成

1. 标题栏:这里会标注图纸的名称、比例、日期等信息,方便识别和归档。
2. 视图:包括正视图、侧视图、俯视图等,从不同角度展示家具的形状和结构。
3. 尺寸标注:每个部件的尺寸都会在图纸上明确标注,单位通常是毫米。
4. 材料说明:不同部件使用的材料也会在图纸上注明,比如板材、木材、金属等。
5. 工艺要求:一些特殊工艺,如雕刻、打磨等,也会在图纸上有所体现。
三、如何读懂开料图纸

1. 熟悉图纸规范:首先,你得了解图纸的基本规范,比如比例、尺寸标注等。
2. 分析视图:从正视图、侧视图、俯视图等多个角度观察家具,了解其整体结构和各个部件的位置。
3. 尺寸标注:仔细阅读尺寸标注,确保每个部件的尺寸准确无误。
4. 材料选择:根据图纸上的材料说明,选择合适的材料进行制作。
5. 工艺要求:了解特殊工艺的要求,确保家具制作过程中的质量。
四、注意事项
1. 核对图纸:在制作家具前,一定要仔细核对图纸,确保没有遗漏或错误。
2. 沟通确认:如果对图纸有任何疑问,及时与设计师或家具厂沟通确认。
3. 预留余量:在制作过程中,要预留一定的余量,以应对加工误差。
4. 安全第一:在制作家具时,一定要注意安全,避免发生意外。
通过以上解析,相信你已经对定制家具开料图纸有了更深入的了解。在今后的家具定制过程中,这份图纸将成为你的得力助手。快来试试吧,让你的家焕然一新!